尚雯婕曾暗恋心仪的男人四年,受伤以后,至今都是单身一人_超女_事业

相关图片

超女江湖列传之:狠人尚雯婕

尚雯婕以519万张票,战胜夺冠呼声甚高的谭维维,成为2006年《超级女声

我真的很喜欢单眼皮时期的尚雯婕,2006年超女最支持她.

从"超女"到"声入人心"尚雯婕是什么唱法呢?-声乐导师伍文彬

尚雯婕在超女快女主题曲演唱中,一句法语翻译惊艳全场,同传实力名不虚

随机推荐

彭昱畅摇身变成腹肌男一改发福体型穿衬衫太有魅力

邓伦:你从时光中走来,惊艳了我们的岁月

ins欧美头像大全

东港幼儿园园标解析_第1页

吴谨言新中式造型

关闭按钮图标

awsl来自白敬亭的doublekill

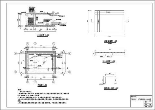
某循环水池结构图纸(cad图纸下载)