玻璃-不锈钢栏杆节点详图

相关图片

室内设计施工图玻璃栏杆施工做法详图分享.#室内设计 #装修设 - 抖音

玻璃-不锈钢栏杆节点详图

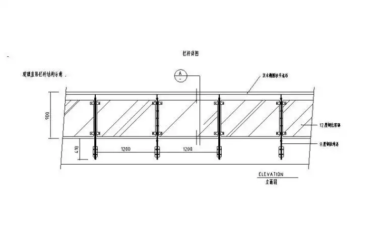
玻璃栏杆结构详图

室内外玻璃扶手栏杆通用节点施工图-无框玻璃栏杆通用大样图2

下图中的玻璃栏板需要设置水平钢筋垂直钢筋和拉筋吗

随机推荐

2021彩虹色艺术字图片下载 png2020双十二广告字体下载 png国家公祭日

迪丽热巴最让你怦然心动的时刻是怎样的?

1923年包豪斯展览海报,herbert bayer

华润百尊燃气灶百尊燃气灶华润燃气灶铜炉头带熄火保护台嵌两用天然气

陈小纭短发好看,陈小纭超短发,陈小纭的发型短发陈小纭气质短发写真

老师您辛苦了表情包动图23张

收一把4ug5全新或者首线的无暇sp黄林丹

古代美女素描画古代美女素描画像图片大全