吊柜的高度一般最合适高度在150-160cm,其中工作台面与吊柜底柜距离

相关图片

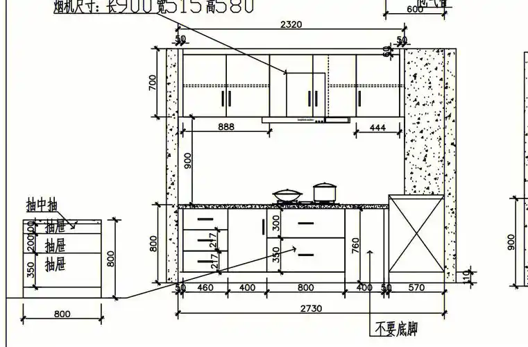
厨房吊柜标准尺寸是多少

自以为问题不大的橱柜结果翻车了认为商家对于烟机和吊柜的尺寸之类的

2地柜悬挂及避柱处理,右边放洗衣机,吊柜左右宽度对称;2.

厨房吊柜标准尺寸是多少

4, 卧室吊柜高度多高,多深?

随机推荐

清爽穿搭帅气值拉满~扔石子打水漂太可爱了#王源立夏营业照

4,女人命宫两眉毛之间有痣,则代表与老公感情呈现不调和,心心相印

发型 中年男人:劝你尽量别留这3种"发型",显老油腻,颜值高也白搭 短发

甘露穿健身衣服露细腰,裤子太紧勒出尴尬痕迹,身材下肋骨突出明显

动漫头像:精选帅气男生头像

真实马永贞 打败西洋力士战胜外国骑士 性格骄傲遭算计丧命

圆形能画出好多图案圆圈画各种动物简笔画简笔画教程文化绘画多个圆形

护士简笔画