八部即将上线的古装仙侠奇幻剧你最期待谁喜欢的可以收藏下来

相关图片

2023年最值得期待的10部古装剧,男神女神齐聚一堂,堪比神仙打架_故事

有没有人推荐好看的仙侠剧仙侠剧是不是从仙剑开始的

仙侠剧《护心》热播 陈欣予神仙颜值吸粉无数|古装|模特|侯明昊|演员

2023年最值得期待的10部古装剧,男神女神齐聚一堂,堪比神仙打架_故事

古装剧电视剧大全又有一波古装剧可以追了

随机推荐

纹理三七分造型小技巧

原创杨颖不愧是时尚模特身穿抹胸设计的格纹连衣裙尽显女性魅力

回顾周迅的父亲周天宇:挽救过女儿的婚姻,现在我的心痛

天蝎座头像

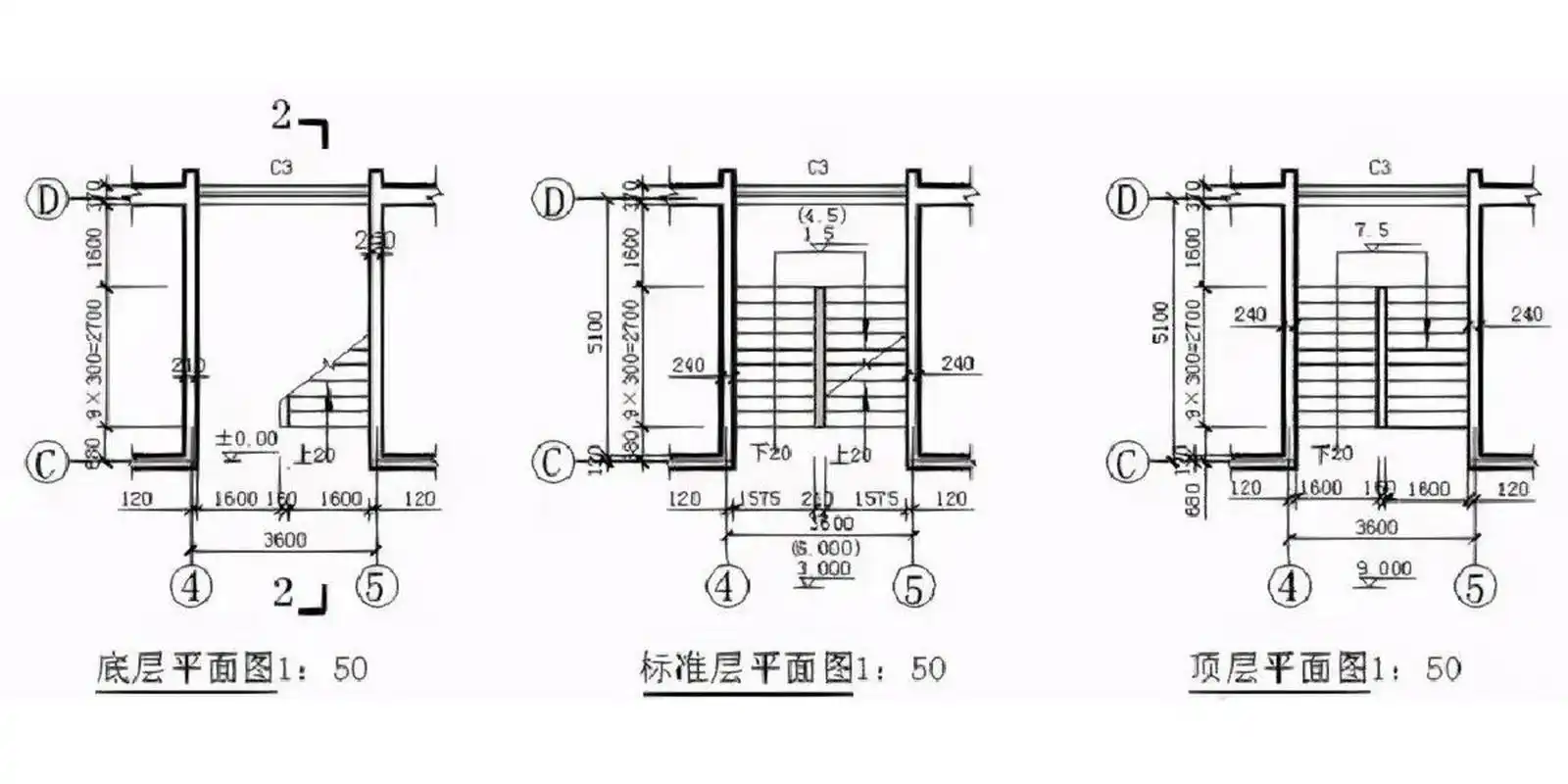
楼梯的画法(单侧/双侧/旋转) 楼梯的绘画主要用于二至多层平面图中

2024新款分体泳衣女夏三点式高叉性感比基尼欧美海边度假温泉泳装

冰菓·壁纸

《师父》曝"迷失"版剧照 廖凡宋佳情欲纠葛