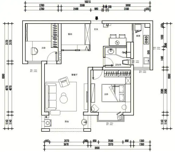
两室怎么改三室,大神帮忙分析一下.

相关图片

两室两厅改成三室一厅的方案请高手给意见.

北京两居改三居

两室改三室

求高手帮忙两室改成小三室

两房改三房

随机推荐

理想信念不动摇 乌审旗第一中学 374班 八组

tfboys易烊千玺 160316 超少年密码 高清 cr.logo 侧颜

熊黛林和张梓琳.图片来源:香港"明报"

专访丨物理学家李淼:如何给孩子讲关于外星人的事

赵露思性感半臀,太有诱惑力了,爱了爱了!

个人技能提升 | 营销员不得不说的秘密_工作_商品_管理

完美身材的诱惑!喻言凹凸的曲线就像一件艺术品,令人惊叹!

植物大战僵尸2(摩登世界僵尸)矿工僵尸