厨房设计立面细部尺寸

相关图片

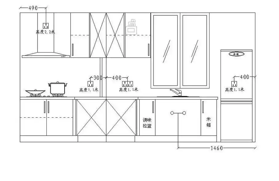
厨房的各个功能区域立面尺寸解读,区域不同,尺寸高度不同

厨房立面

乾龙纪彬凡连荣猴年吉祥北欧日系风格安装季高仪toto

各种厨房立面图符号,一起打造私人厨房!

11-厨房立面图

随机推荐

宋茜三登芭莎!素颜照曝光,风格迥异不像一个人,手上的美甲抢镜

蓝色系伤感女生头像图片

精选韩东君的电视剧

"青丘女帝白浅,万万年第一绝色,四海八荒都得尊称一声姑姑"

如龙系列高清官方中文合集如龙07全中文主线剧情cg桐生一马的一生

剧组 #工作花絮 #拍摄现场 #只有照片能记录这份珍贵 - 抖音

桂林山水美图87幅,秀丽迷人,美如画卷

大头儿子