玻璃栏杆结构详图

相关图片

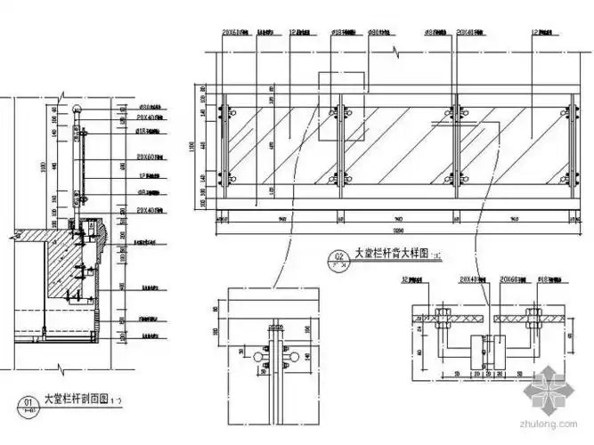
室内外玻璃扶手栏杆通用节点施工图-商场玻璃栏杆通用大样图

玻璃-不锈钢栏杆节点详图

某玻璃与大理石节点楼梯栏杆cad剖面施工设计图

下图中的玻璃栏板需要设置水平钢筋垂直钢筋和拉筋吗

钢化玻璃栏杆详图

随机推荐

二年级美术课堂《给树爷爷画像》作品展播

肖战蓝t背带裤##肖战rio全球品牌代言人

后周开国皇帝郭威:不传位给儿子,为什么将皇位传给老婆的侄儿?

唯美清新蒲公英海报背景psd

45岁至50岁发型图片(45岁的女人) - 赤虎壹号

周柯宇身cm2022秋冬系列cubic

寂寞沙洲冷吉他谱c调简单版 周传雄

金州勇士队霸气库里帅气写真,高清图片,电脑桌面-壁纸族