景观水池平面cad套图1

相关图片

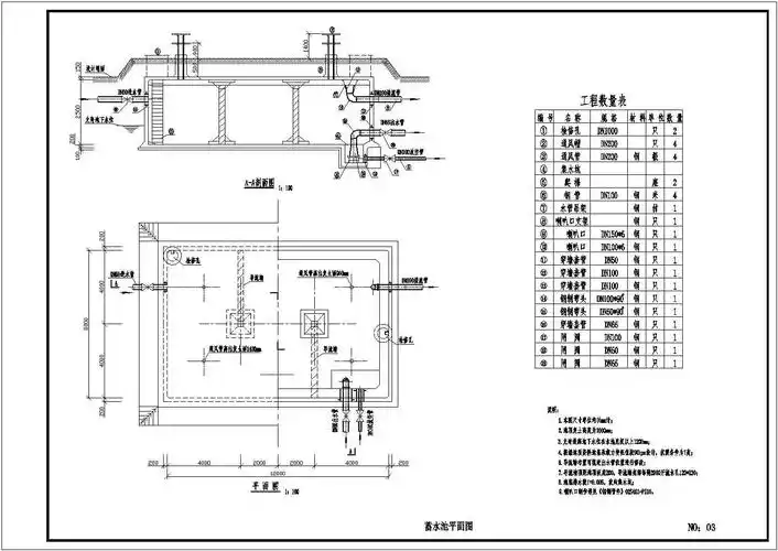
水池设计详图

知道要画水池的时候,其实我是一脸茫然的,在不断的询问和自己上午摸索

240立方米矩形钢筋混凝土蓄水池图纸

300方和500方清水池设计图纸

小型景观水池施工大样图

随机推荐

全场菜品夜宵28折放肆吃大渝火锅又开新店6店同庆

李飞张进

akoya珍珠选购干货附最新价格表75

赵露思熊耳帽

卓别林简介ppt

分析:周子舒是如何把温客行当成知己的?

特斯拉皮卡交付

步长倍佳盐酸特比萘芬凝胶15g盒手足癣股癣花斑癣皮肤念珠菌病