一组张老照片60后70后80后的记忆回不去的童年张张戳中泪点

相关图片

70后,80后的童年,满满的回忆,再也回不到过去

一组张老照片60后70后80后的记忆回不去的童年张张戳中泪点

40张稀罕的童年老照片:60后70后80后的童年回忆,是否有你的样子

农村70-80后,童年玩过的16种游戏,每一种都很经典,你还记得吗

一组张老照片60后70后80后的记忆回不去的童年张张戳中泪点

随机推荐

阿玛尼发布易烊千玺全新大片代言人倾情演绎ea2021秋冬系列

王俊凯蓝色夹克时尚感爆棚帅气写真

周雨彤在《大宋少年志2》里的状态不好,演得有气无力的,被剧粉批远远

郑秀文留短发配红唇穿黑丝女王范十足

小雨造型男士素颜大改造

危情实录:富婆去找穷小伙,怎料准婆婆不让进门,富婆秒懂了!

鬼谷八荒凛雪冰夷奇遇攻略

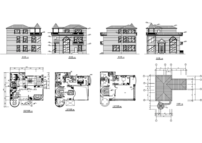
古典三层坡屋顶自建房屋详细建筑设计图