「电力电气」现代智能建筑防雷技术应用研究

相关图片

防雷接地系统应该怎么设计?

防雷接地装置部分概念,识图方法,平面图阅读技巧详解!

《建筑物电子信息系统防雷技术规范》gb50343-2012解读培训讲义

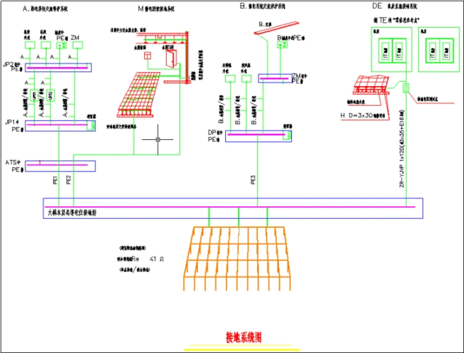
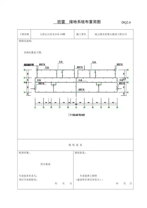
防雷接地

雷电在线检测系统防雷 - 2020年最新商品信息聚合专区 - 百度爱采购

随机推荐

王源you are forever my little angel

漂亮的儿童蜡笔画我心中的梦

胡歌谈宝总拿到这个角色一长得帅二有作品第三最重要

一部隐私简史同样也是一部人性的历史

中考语文四字成语改错精选200题及答案.docx

杨超越94斤的体重太不真实了!

韩国团体"神话"队长eric结婚

动漫人物男头像帅气图片(优选36张)