可爱超萌小男孩头像卡通头像大全

相关图片

卡通小男孩绘画 卡通小男孩绘画图片大全

穿着背带裤的小男生要如何画男孩简笔画大全帅气的小男孩简笔画教学

帅气男孩

卡通彩色小男孩简笔画图片大全可爱帅气小男孩简笔画怎么画

帅气的男孩子

随机推荐

起点很高演技和李沁旗鼓相当,为什么蒋梦婕也一直不火?

新年壁纸!2021牛年手机壁纸!元气满满

爱豆专题丨古天乐の头像

一组高甜又温馨的人物动态素材~转需~ kibbitzer #绘画参考##人体

一双红色高跟鞋

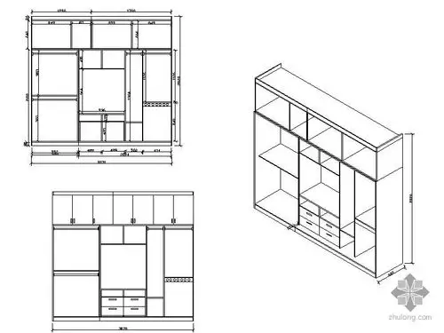
衣柜立面图

口琴谱子(新手入门的曲子)_word文档在线阅读与下载_免费文档

墨香铜臭