如何画在广联达土建算量软件里面画楼梯?

相关图片

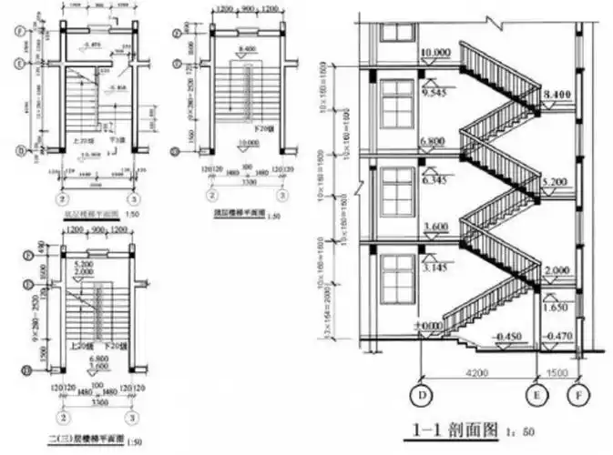
楼梯平面图

楼梯平面图

冷知识,会cad教你画楼梯平面图和立面图

首层楼梯怎么画

装修干货丨复式户型楼梯怎么设计

随机推荐

女生拿手机遮脸头像女生拿苹果手机头像

邓伦

看范丞丞如何高情商回答女生体重问题真是个有梗努力的偶像

各式各样的耳廓畸形-杯状耳_耳部整形_耳部整形症状 - 好大夫在线

电池组接线根据ups电源主机要求的电池组电压分了12v,24v,36v,72v,96v

金雯昕1126生日粗卡用角色历练演技向品质女演员蜕变

沙雕音乐课一只总是欲言又止欲说还羞的腮红鸡和一个不会吹口哨却试图