接地装置安装作业指导书_secret答案

相关图片

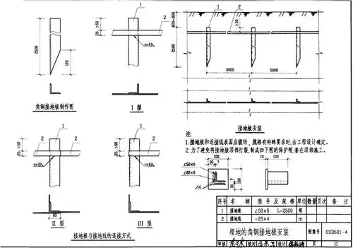
接地极做法示意图-model.pdf 1页

接地极安装示意图-布局2

钢筋混凝土预埋做法-14d504 接地装置安装

关于避雷带的接地做法,请您查阅标准图集《防雷与接地装置 92dq13》.

接地体(做法详见03d501-3 p45),无基础梁处利用-40*4镀锌扁钢贯通焊接

随机推荐

欧美复古风格墙壁背景&装饰边框高清图片素材

也是,如此搞怪又可爱的杰克船长,又有谁不喜欢?

气质男头像成熟黑白

蔡徐坤有腹肌吗 蔡徐坤现在的人气是怎样的呢

1994年属狗的婚配属狗人性格好吗最佳婚配属相

魔兽争霸

衣柜_立面图_cad图集_装修效果图_怀化装修网_【装饰互联】huaihua.

我一米六,体重86,求购衣服