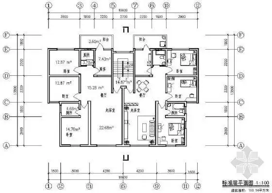
某六层单元式住宅楼建筑初步设计图-图一标准层平面图,正立面图,剖面

相关图片

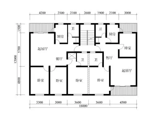
某板式住宅单元组合平面(二)

2#楼二十四层,二十七层 t1 01单元,t2 04单元平面图

丙单元标准层平面图

132套单元式住宅,户型设计cad

132套单元式住宅,户型设计cad

随机推荐

lucky幸运草头像锦鲤附体

女生长发编什么发型好看慵懒感长发编发设计

fila时尚运动代言人高圆圆##fila摩登周末

240平米大平层户型,仪式感爆棚了!

几次三番调戏人夫,人品堪忧绿茶味十足,褪去画皮后的真实王鸥|靳东

从此开始,歪嘴战神在b站一战成名,热度辐射到全站.

41岁的于明加,长得何止漂亮,穿衣品味更是令人赞叹.

国画生宣工笔朱砂墨绘貔貅系列9#国画 #每日一画挑战365天 - 抖音