[北京]简欧大户型鞋柜详图

相关图片

[分享]鞋柜立面详图资料下载

原本鸡肋的玄关,活生生变出2面顶天立地鞋柜 1个储藏间,太变态了!

入户玄关 鞋柜

鞋柜该怎么设计好收好这些入户玄关鞋柜设计尺寸图

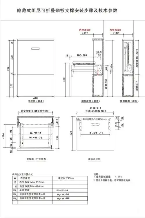
鞋柜隐形折叠凳回弹式缓冲配件玄关椅壁挂凳隐藏式折叠换鞋凳五金飞昂

随机推荐

那些年我觉得封神的王源高清图片

肖战笑容肖战动图 - 专辑 - 高清图片,堆糖,美图壁纸兴趣社区

女性150—180cm标准体重对照表,你超标了吗?运动起来或许能帮你

女明星模特国外美女壁纸97

刘惜君声生不息让一切随风舞台

魔兽世界有哪些种族和职业(魔兽世界各职业所有种族介绍) 第33张

港铁动感号crh380a试运行进虎门站2站台

158型小个子女生这样穿真的好显高吖