1,将进门鞋柜改到左边和客厅边上高柜形成一体.

相关图片

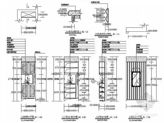
[分享]鞋柜玄关dwg资料下载

[分享]鞋柜cad详图资料下载

进门就是客厅没有玄关如何放鞋柜给你5套解决方案

一平米变十平米|客厅|户型|鞋柜|橱柜|储物柜|电视背景墙_网易订阅

最全的入户玄关鞋柜设计攻略快收藏吧

随机推荐

美女模特小热巴,绿色迷人吊带连衣裙写真照,魅力十足,令人心动

华晨宇2023演唱会舞台图释出与奥运舞美团队再合作_之城_音乐

每日教你简单画人物侧脸

你了解飞蓬草吗?村民常摘回家晒干或作饲料-度小视

大众女神张天爱身材性感窈窕惹人羡慕古灵精怪甜如初恋

angelababy古装清冷感##angelababy月下浅酌#杨颖@angelababy中秋节

赵露思超话‖#赵露思凤隐# 93赵露思◎氛围感头像 ty:vb ks

靳东胖了比瘦了好看 少数变胖好看的明星,瘦的时候完全没认出是靳东!