冬天多吃芹菜身体好分享5种芹菜做法清爽解腻孩子不挑食

相关图片

凉拌芹菜做法有时吃膩了炒菜就会想吃清爽 - 抖音

如何做芹菜好吃,芹菜的几种家常做法

夏季怎么吃芹菜才好,4种家常芹菜的营养做法

做芹菜香干好吃的做法

凉拌海米芹菜的做法

随机推荐

陈冠希则更是将高桥凉介的帅气与睿智演绎地淋漓尽致,以至于带起了一

四人闺蜜头像酷酷的飒飒的

周杰伦明明就尤克里里谱子

超清壁纸 4k手机壁纸 城市 街景|建议收藏

侧身站立姿势怎么画动漫人物全身站立画法教学

纯种英短蓝白猫咪幼崽短毛猫咪蓝白五粉正八脸矮脚猫英短蓝白幼猫矮脚

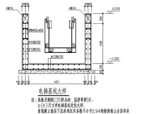
施工工

古风黄色龙png素材透明免抠图片-动植人物-三元素3png.com