接地极做法

相关图片

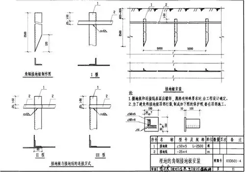
4欧就是4欧姆,正规的接地极的做法

目录 一,基本规定 二,外电防护 三,配电线路 四,接地接零 五,重复

接地极造价(接地极工程量怎么算)

山东离子接地极金昊源特别先进工艺降阻显著

3,使用截面为30mm×3mm的铜排,沿墙体四周分别均布安装环形接地母排

随机推荐

钦仰!盘点娱乐圈明星们的混血孩子"若即若离"-第1张图片-华泰博客

45话

【博君一肖】王一博 素描

原创iphone11拆解内存电池已经确认有点小失望内部就像艺术品

融创臻园90平米北欧风格装修效果图

少年感十足烫发发型,帅气清爽,蓬松立体有型

12日线上素描,速写,彩铅课程(具体课程可根据学生需求和时间进行调整)

夏日美背#背部祛痘