现场照片

相关图片

现场照片1.jpg

马鑫的结婚现场照片

b317小预算第十六季婚礼现场图高清无水印布置图片现场图谈单图

2021第十六届中国山东国际装备制造业博览会现场照片

调研现场照片

随机推荐

x玖少年团成员的比心,夏之光很直接,谷嘉诚用道具,看到肖战:另辟蹊径!

周六福品牌代言人黄景瑜##深圳##周六福##黄景瑜##广告

手把手教你在家做盐烤三文鱼沙拉 营养健康低热量减肥健身都能吃

熊梓淇图片熊梓淇黑白写真图片

黄明昊慵懒街拍图片桌面壁纸

网曝王灿成功生子,杜淳随后晒妻子孕照大片,造型却意

儿童发型男8一9岁飞机头剪发教程宝宝飞机头发型图片男短发

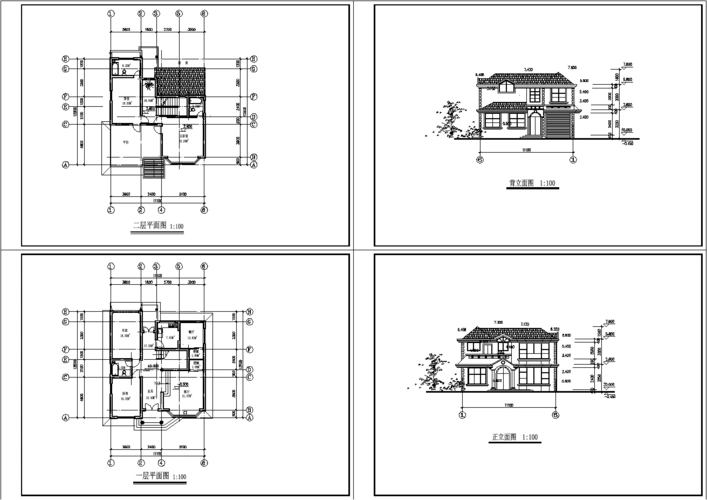
某地区小型别墅建筑设计方案全套图纸