分享马头墙cad资料下载

相关图片

地道的徽派建筑马头墙

马头墙尺寸一般是多少设计马头墙需要考虑多方面的问题,例如具体形式

[分享]徽派马头墙cad图资料免费下载

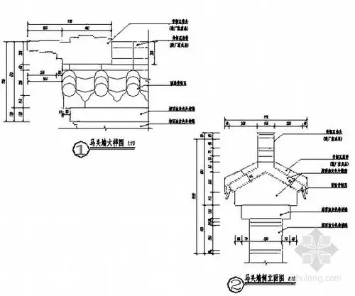
徽派建筑马头墙节点详图

徽派建筑马头墙节点详图

随机推荐

王凯霍建华不仅侧脸完美,眼睫毛更是比女孩子还要浓密又根根分明啊!4.

人鱼线腹肌只需要3个下腹部锻炼

美少女战士自粘墙贴ins网红少女心贴纸儿童房卧室贴画宿舍装饰品

王一博杨洋许凯刘学义侯明昊李易峰肖战任嘉伦古装剧中最经典的造型莫

节目破壁配套升级文化广场2020户外舞台演出季第二季更精彩

街拍美女:连衣裙流行的5种颜色,上身效果非常好|裙子|粉色_网易订阅

河北:1-2月份规上工业高新技术产业增加值增长13.4%

古风汉服美女仙气写真图片桌面壁纸高清大图预览1920x1200_美女壁纸