分享别墅卧室衣柜大样资料下载

相关图片

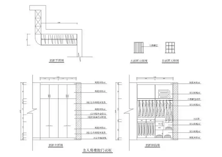
定制橱柜衣柜怎样看懂设计图,如何审查柜子平面图立面图内部详图

将衣服都挂起来的收纳法,纯属胡扯!_衣柜

分享衣橱立面cad资料下载

工装cad家具立面图块资料下载-39款-室内衣柜装饰立面图例图块

定制橱柜衣柜怎样看懂设计图,如何审查柜子平面图立面图内部详图

随机推荐

胡歌头像图片 男明星胡歌帅气超酷头像图片_微信头像图片大全

迪丽热巴超美写真高清图片桌面壁纸

康巴赫炒锅不粘锅316l不锈钢炒菜锅32cm双面蜂窝锅电磁炉燃气灶通用

点状科技背景装饰线条装饰

抖音同款潮图壁纸,换上的人都超叼!

"-大众点评移动版

山河令大结局##温客行白发

blackpink因为它集体翻车直发vs卷发到底选谁