某药厂制剂车间平面图(共4张图纸)

相关图片

药厂设计案例-固体制剂综合车间设计

药厂车间工程制图和流程图microsoft office word 文档

制剂药品冻干的基本概念与工艺要点_制药网

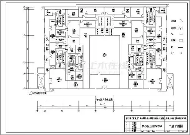
某桥大学生制药工程设计制药厂车间平面布置图

某药厂十万等级gmp净化设计图_工业厂房_土木在线

随机推荐

姚晨× 时尚芭莎黑白演绎简约的高级质感,英气十足!#姚晨英气细眉

70岁刘晓庆晒近照,皮肤白皙露大长腿,身材状态似少女_锻炼_美的_自律

壁纸 新西兰,湖泊,山脉,日落,房屋,树木 3840x2160 uhd 4k 高清壁纸

王一博赵丽颖私下聚餐 - 抖音

mcclenaghan_20的博客 - mcclenaghan_20 - 网易博客

人生三碗面:爱面,面面,景_梁启超_徐志摩_面子

全新一代奥迪a3 sportback,两厢版与海外保持一致造型

珠光宝气壁纸