200平普通住宅户型图

相关图片

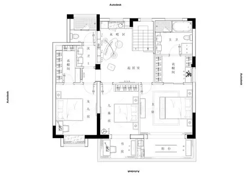
房屋户型

各位大神帮我看下200平方大平层,要求4房,我的设计合理不?

城阳区赠送两百平米大院子别墅4层

全屋户型图

东边户200平院子带天井实用面积大房东诚心卖价格能谈

随机推荐

62岁刘德华告诉大家,发型一丝不苟,裤子短一截,到老也不油腻_生活习惯

肖战水仙伪神雕侠侣魏杨过x小龙冰上卷四周年初剪水仙请多关照

琅琊榜:滑族最终复国成功了?曾被梁帝灭族,第二部终于

罗马诺南意大利子分aph

孙杨除了怒吼还能做什么?

短发蛋蛋卷法式烫可爱减龄显发量多哟

陕西省委书记赵乐际(右),原国家体改委党组书记安志文(左)共同为谢

盗墓笔记遭误解,男子愤砸签名墙,法律将严惩不贷!