贵阳主城区这个大平层户型有点舒服的哎

相关图片

首发350㎡简约大平层沉浸时刻邂逅一个懂你的家

青岛卓越天元 350户型大平层样板房

套内350平大平层

金汇豪庭小区,版式大平层,精装修拎包入住

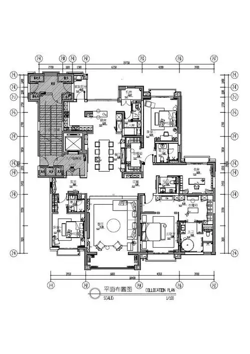
这套330平米的大平层,整体布局好特别,四个房间分别在四个角落,这样的

随机推荐

海贼王:很强但对路飞不管用的能力!你认为哪个能力更胜一筹?

女生后背上的痣有什么寓意 后背痣相解析

青岛城阳商圈进阶刺激者:万象汇

罗云熙白鹿晒长月烬明大婚照##罗云熙白鹿互评二婚好甜# omo!

连绵起伏的高山耸立在飘渺的云海中

病娇系二次元动漫男生头像,爱情没有两全其美,只有两败俱伤

红木鉴别之:缅甸花梨真假辨识

一期古风ipad电脑壁纸