160㎡大平层户型优化设计

相关图片

220㎡大平层户型规划户型改造

最近流行200㎡大平层豪宅设计趋势

大平层

通州核心区,观河大平层,走向人生巅峰的标志建筑

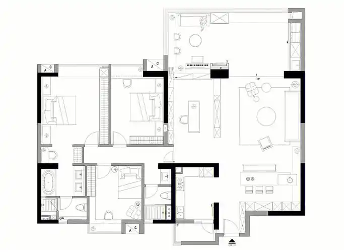
漂亮的大平层户型布局,动静分离,没有暗卫,而且还有入户衣帽间的布局

随机推荐

四川中药柜

哈纳雷湾夏威夷高清桌面壁纸:宽屏:高清晰度:全屏

深陷"犯罪"谣言两年之后,"袭击"好友的张一山过得还好

聆海金鱼姬

冬至正午时分的北京故宫午门

472型离心通风机性能参数表pdf5页

江西九江国际金融广场333米打造第一高楼-建筑施工新闻-筑龙建筑施工

演员于震:前妻方柏霓造谣我"家暴男",二婚媳妇辛月爱我如珍宝