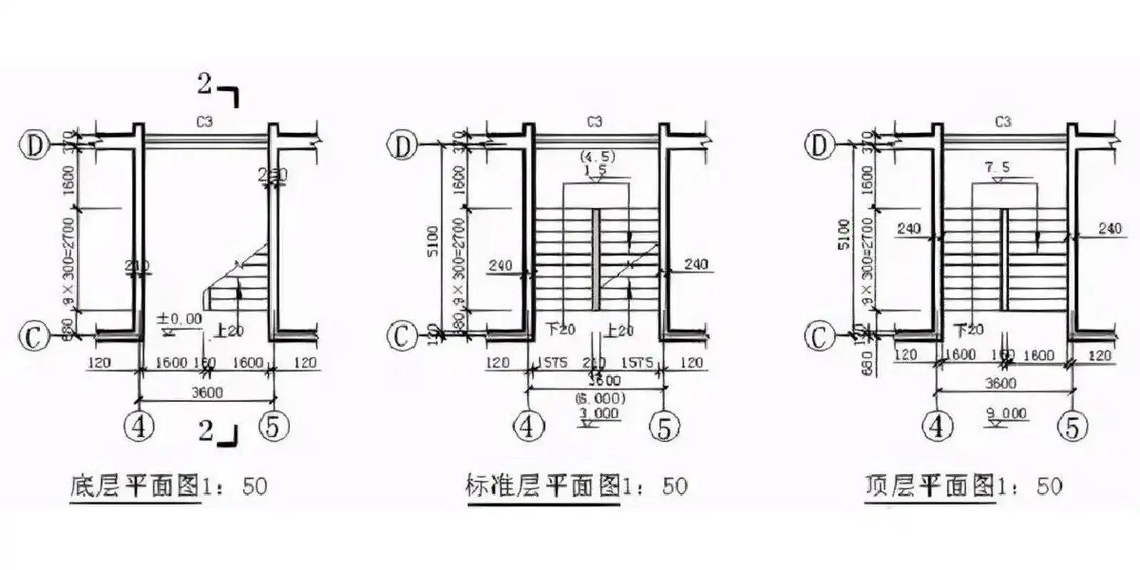
土木工程毕业设计楼梯建筑图

相关图片

楼梯平面图

楼梯平面图 剖面图 这正确吗?

二层楼梯平面图

清彩画影 正面楼梯怎么画?画好立体感楼梯台阶的3个要点!

教你读懂楼梯平面图!

随机推荐

宫廷计

怀孕的女人最美,看看自爆怀孕大肚照的明星

金珉锡3d音效190629exocbx2019magicalcircus日巡埼玉场蝴蝶少女dont

实拍长发水波纹烫发图片,染发图片,发型图片

参加好声音被那英看中,跨界当导演闻名中外,今与梁博合作再爆红

赖冠霖 101

《龙猫》——现实与幻想间的缝隙|动画|宫崎骏|吉卜力|高畑勲_网易

李小冉丈夫徐佳宁:从男闺蜜到亲密爱人,我的妻子我来宠