09s304卫生设备安装3

相关图片

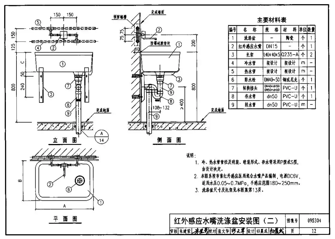
09s304 卫生设备安装图集-01

09s304 卫生设备安装图集-01

09s304 卫生设备安装图集-01

09s304 卫生设备安装图集-01

09s304 卫生设备安装图集-01

随机推荐

曾与刘德华搭档,嫁入豪门却遭丈夫离婚,如今又被全世界追着复合

李承铉让lucky等弟弟长大后再收拾##爸爸当家

王一博##王一博机场

王一博#王一博他就像一个无穷的宝藏,越考古越爱,2018年创造101孕型

虾满堂手抓龙虾 长宁店

汤唯机场#汤唯黑色休闲装低调现身机场,舒适又松弛,美女状态真貉浇

军人军旅帅气致敬绘画插图来自young军旅漫画

华为(huawei) ws5200 增强版双千兆路由器 1200m双频wifi 无线家用