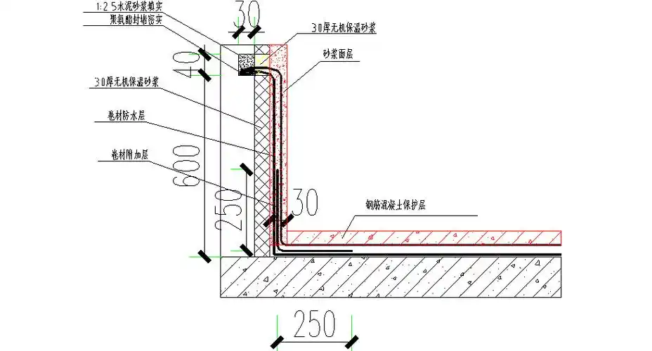
女儿墙泛水与压顶节点构造设计图

相关图片

女儿墙防水节点详图

屋面女儿墙泛水及保护层验收标准.png

(3)女儿墙泛水防水做法(带天沟)

女儿墙节点详图

女儿墙泛水防水构造

随机推荐

程潇惊艳写真:逐张沦陷的视觉盛宴_气质_章节_身姿

真美诗官宣古力娜扎为最新代言人,并拍摄了#娜扎的ootd#宣传片.

原创原来这就是杨幂那么不喜欢她的原因

车银优胸肌照真的好吸睛!

白敬亭帅气写真图片桌面壁纸

【多图】拙政别墅世外桃源传统四合院奢华独栋置身昔日苏式生活_苏州

会有宫外孕的可能吗?4月23日早上用早孕试纸检测是弱阳

超火的禁忌女孩娜诺富江头像这世上回首之间都是人走茶凉