boy你真帅

相关图片

小哥哥你真帅_小琢_高音质在线试听_小哥哥你真帅歌词|歌曲下载_酷狗

你好帅

你真帅说这句话真心难受斗图精选表情包67斗图表情

李宇春和pgone撞衫对酷帅牛仔的热爱不需要理由

是的你本人真的很帅

随机推荐

你收集了肖战哪些好看的照片

间谍过家家动漫人物阿尼亚素描绘画过程图.#手绘 #艺术在抖音 - 抖音

另外礼服修身的款式,也勾勒出宋佳完美的身材曲线,纤细的小蛮腰和九头

未拆封~周杰伦《我很忙》

2021结合发型作品 #高级感发色 #减龄发型 #质感染发 - 抖音

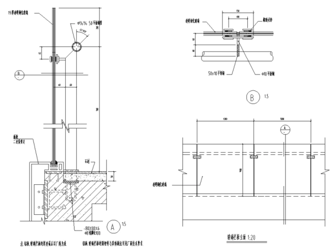
内容简介: 玻璃-不锈钢栏杆节点详图 包含:平面图,立面图,大样图.

人初油男性外用延时喷剂胜万艾可 成人延时持久不麻木用品(人初油喷剂

本人身高165体重100斤 郑州本地人 感觉科一考不过 请大 - 抖音