制药厂车间布局cad图dwg图纸

相关图片

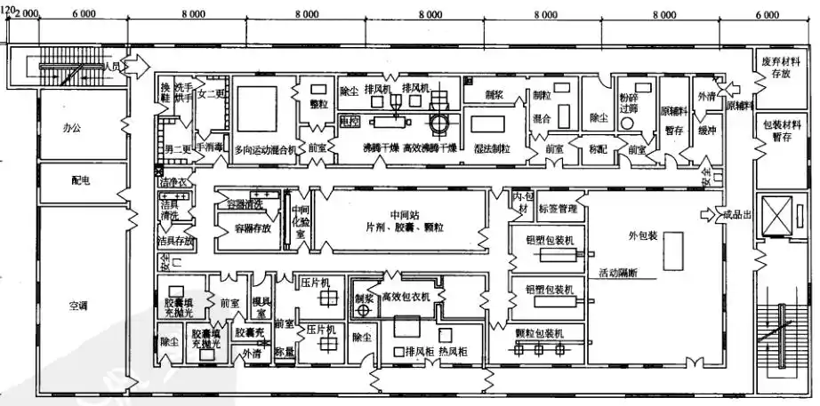
制药工厂平面布置图

某药厂制剂车间平面图(共4张图纸)

某桥大学生制药工程设计制药厂车间平面布置图

某桥大学生制药工程设计制药厂车间平面布置图

某桥大学生制药工程设计制药厂车间平面布置图

随机推荐

唯美动漫星空夜景桌面壁纸

男生最帅武士头

9,(2004年)《功夫》"想学呀你?我教你呀"

台风少年团 "台风少年行,少年已独行"愿五个小孩都能奔赴在 - 兑趑

感受一波黄明昊到底有多优秀

简约厚底坡跟一字扣罗马女凉鞋 黑色 37【图片 价格 品牌 报价】-京东

准驾证正面源文件

焦作婚庆公司 #婚礼布置 #农村婚礼 #农村户外婚礼 #户外婚礼