努比亚黑山羊的主要特征有哪些?从5方面了解,方知效益高

相关图片

努比亚黑山羊价格-黑山羊怀孕母羊种公羊小羊苗出售 质优价廉

马山黑山羊全羊宴

喝"山泉水"长大的沁水黑山羊

文昌绿色田园黑山羊

努比亚黑山羊一对牙公羊

随机推荐

肖战休闲时尚写真

李现发布迎新年西装写真发文拜年贺新春

q版人物全身|九宫格|可爱卡通形象合集

吕一优雅文艺户外写真图片47

漂亮的女同事7015易烊千玺同款

《月亮代表我的心,钢琴谱》翁清溪|弹琴吧|钢琴谱|吉他谱|钢琴曲|乐谱

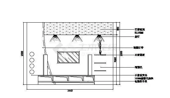
cad图-图一本工程为电视背景墙全集立面cad图,包含电视背景墙立面图

冲击式料仓气动敲击锤 饲料厂料仓仓壁下料气动锤 空气锤