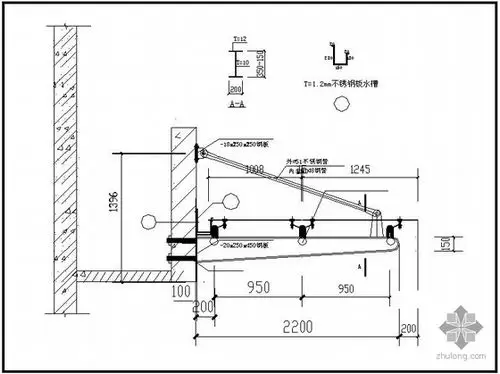
某车库玻璃雨棚cad结构设计图

相关图片

某钢结构雨棚结构设计图

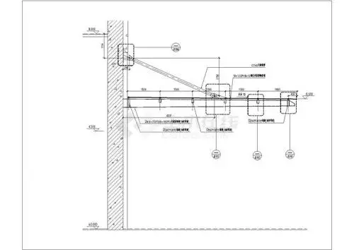
某地主入口雨棚设计cad大样图纸

pc阳光板雨棚设计效果图

某地的某轻钢雨棚设计施工图纸

雨棚设计_某市某单位钢结构雨蓬结构施工cad图纸

随机推荐

小清新绿色树叶护眼图片桌面壁纸

晒晒张翰的豪宅:家里装修豪华又时尚,餐桌上的饭菜也太丰盛了

( 木 村 拓 哉 )冰球比赛!

黑胶试听|珊瑚海 (feat.梁心颐) — 周杰伦

全家福简笔画四口之家全家福简笔画画法步骤图

苏妲己聚会大曝光,美若天仙,雷人之态,绝无妩媚劲!_的苏_封神榜_气质

每天都在找女明星的照片练手…#ps证件照 #证件照 #韩式证件照

新时尚小男孩发型来了,这几种真不赖,有儿子快快收藏吧|寸头|染发