变电所接地网的设计与安装

相关图片

低压供电系统接地示意图解决方案华强电子网

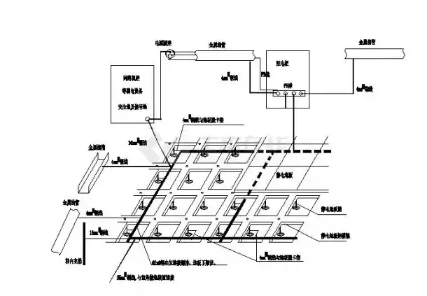
某城市小型机房电气接地系统示意设计图

10kv电力变压器安装接地有哪些形式

我国电力系统接地方式

关于配电柜接地

随机推荐

"选秀嫌他丑,出道追成狗",赖冠霖鞠婧祎没啥,看到任嘉伦:经历了什么?

原创迪丽热巴拍策划时突然脱掉外套下一秒画面让摄影师都差点扛不住

三星堆·金沙遗址出土文物大展上海开幕!

幽默高考励志短语句子

p>黑龙江省实验中学(heilongjiang experimental high school)创建于

朴宝英

青春校园少女漫画头像 高清手绘的好看少女动漫青春校园头像图片

美怡乐巧克力脆宝冰淇淋雪糕冰激凌冰淇凌冰激淋68克6只袋