-

相关图片

一五几的裴珠泫

看腿#irene #裴珠泫 #fyp #边伯贤 - 抖音

裴珠泫 南韩神颜,我裴姐太美了%女神 %t台走秀 %高清 %盛世美颜%这样

裴珠泫irene白衬衫配丝绒短裙清纯又奢华,银色耳坠和手环显优雅

韩流照妖镜lisa时装周造型能打吗裴珠泫怎么穿着妈妈的针织衫

随机推荐

肖战阳光帅气写真桌面壁纸

大天使_纹身吧社区 - 纹身大咖

买菜

南山南(全网首发中国好声音版)c调gtp六线pdf谱吉他谱-虫虫吉他谱免费

气质高冷欧美女生头像高清图片 眼前女头是我喜欢的_导读_标题_整理

小姐姐紧身牛仔裤搭配露脐针织上衣展现出紧致好身材

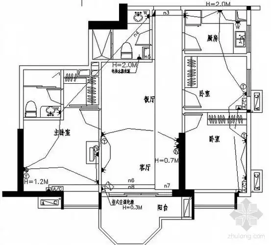
2019年三室两厅装修水电资料下载

好看的女生校服简笔画怎么画 夏季的校服简笔画教程