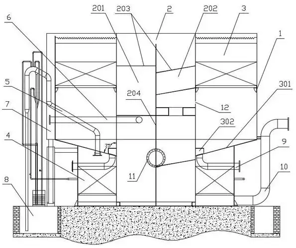
一种多级循环净水器的制作方法

相关图片

一种一体化净水器的制作方法

双层式一体化净水器的制作方法

一体化净水器的制作方法

一种基于物联网的净水器制造技术

一种矿井水一体化净水器

随机推荐

实力派男星胡歌时尚写真:高颜值高演技男神

性感美女写真精选图片高清宽屏桌面壁纸

bn方便面康师傅麻辣牛肉面110g桶

【欧皇降霖】考前拜一拜贺峻霖!吸吸欧气!

【精选高清壁纸】动漫二次元暗黑系, 暗色系

为何48岁俞飞鸿越来越魅力?只因她剪掉十年长发,意外时尚显年轻

泰安楼美式风格105平米三室两厅装修案例

重磅联名!李宁携手迪士尼推出李宁驭帅14玩具总动员专属配色