室内设计客厅立面图

相关图片

家居空间手绘文本平立面图客厅卧室效果图

沙发背景墙立面图

宋美儒的设计师家园

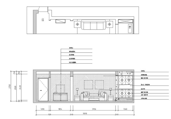
[广东]小巧简约两居室室内装修施工图客厅立面图

马克笔手绘立面图上色步骤分解室内设计

随机推荐

果然紫色很有韵味,热巴真的太适合这种明艳的衣服啦,真是又高贵又高级

孟庭苇是90年的孟庭苇,是曾经少男少女心里的梦.

云中歌云歌杨颖饰

男腋毛长这么些,还能长个吗,你们多大腋毛是长这么些的?

赵丽颖在我们心目中是一个非常努力而且可爱的女明星,颜值也是非常

「装修知识」12年前《家有儿女》就在这里相遇,让我勾起你的回忆!

中国心不甘情不愿地送200海里专属区日本为何迟迟不愿接受

藏戏九头罗刹女面具