同桌是我这辈子做的最正确的事,儿子长相英俊比他帅_李海洋_表演_成绩

相关图片

演员李海洋图片(有人说他是最被低估了的男演员) - 赤虎壹号

1997年,何冰女同学说:我都29了,嫁不出去了,要不然,你娶我吧_李海洋

何冰曾娶同桌为妻钱也归她管一心一意爱了25年

李海洋 haiyang li

看看妻子是谁就知道了_李海洋_实力派_表演

随机推荐

下载小米miui 12抽象高清晰壁纸 1080x2340 合辑一

今日发型##杨幂

简约素材十二生肖图

翘臀美女性感妩媚撩人诱惑写真

劳动合同书样本

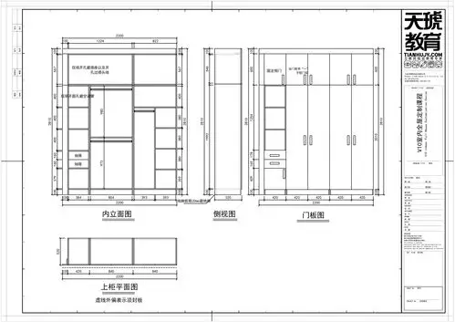
绘制下单图衣柜

祖海,戴玉强,大衣哥等悼念恩师金铁霖:笔短恩长,难忘教诲|金铁霖|祖海

烟灰色高腰牛仔裤女显瘦显高弹力小脚裤2021春装紧身铅笔长裤