韩国男神级男星李敏镐帅照写真大合集

相关图片

李敏镐,韩国男演员,模特,歌手,1987年6月22日出生于首尔

韩国男明星人气排行榜前十名|百想|金秀贤|最帅面孔_网易订阅

韩国最帅的男明星50名 韩国颜值巅峰的男星

盘点韩国最帅70后男明星,原来称霸颜值这块,还是叔们抗打!

韩国最帅的男明星50名 韩国颜值巅峰的男星

随机推荐

秀贤2月17日韩国仁川机场街拍

ins 更新一则"背头小子…"@李现ing

鞠婧祎礼服美照来袭!

用3个按钮开关,2个交流接触器,在380v的线路上组装一个电路系统,控制

侧面的人体结构和细化

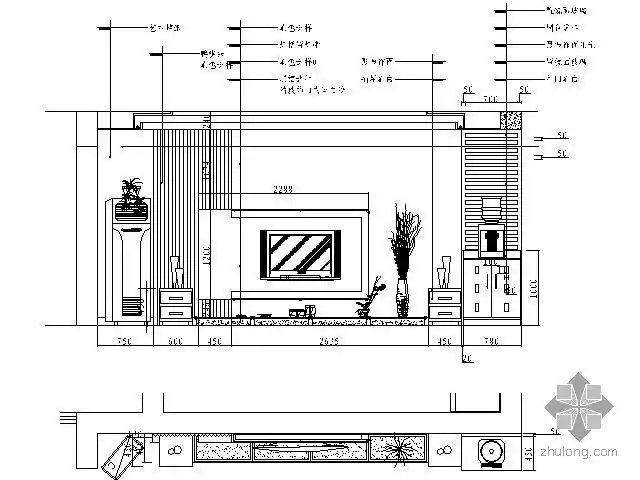
[分享]电视背景墙立面图及节点图资料下载

梦幻迷人的烟花夜景图片桌面壁纸高清大图预览1920x1080_风景壁纸下载

满背大鲤鱼纹身刺青风度翩翩