玻璃-不锈钢栏杆节点详图

相关图片

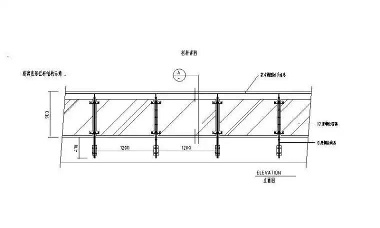
玻璃栏杆结构详图

商场玻璃栏杆施工方案资料下载-室内外玻璃扶手栏杆通用节点施工图

玻璃栏杆扶手做法大样施工图下载【id:1101415337】

玻璃扶手通用施工图下载

玻璃栏杆剖面.jpg

随机推荐

#美妆v赏##杨幂##杨幂功夫熊猫4##杨幂侧编发#

皮卡丘的可爱手机壁纸来啦,欢迎收藏!

这些好莱坞明星素描你认识几个

人中有痣易离婚!面相绝学100招!---虚空子道长

树,路,秋天 640x1136 iphone 5/5s/5c/se 壁纸,图片,背景,照片

【阅出色】极乐世界七宝池里有你的莲花吗?

手绘红色可爱卡通学雷锋纪念日公益海报背景

路口吉他谱张震岳a调超原版编配高清弹唱谱