钢结构楼梯扶手护栏现场施工自由样式 钢结构楼梯扶手护栏,专业定做

相关图片

锌钢楼梯扶手组装式楼梯栏杆彩色静电喷涂美观

抖音图文来了 岩板踏步,玻璃扶手,从钢结构基础到木工打底铺 - 抖音

oeing钢板楼梯扶手整体定制室内别墅极简现代网红钢架结构整梯栏杆

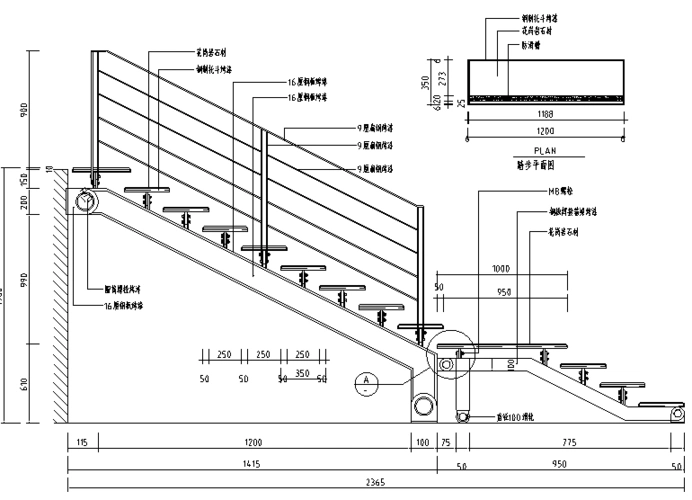
9套楼梯扶手施工节点详图

常用栏杆扶手做法

随机推荐

(41-43/1000)张手机竖屏4k壁纸

科目二点位大全,学手动挡的考前一定要刷到!#考驾照 #学车 - 抖音

人间四月牡丹开,最美不过洛阳城.

电动车控制器原理图

武士敏:大义凛然 抒写爱国气节

能聚财的微信山水头像

中分刘海蓬松甜美可爱中长卷发

lisa将于夏季solo出道正在拍摄个人solo曲mv