09s304 卫生设备安装图集-01

相关图片

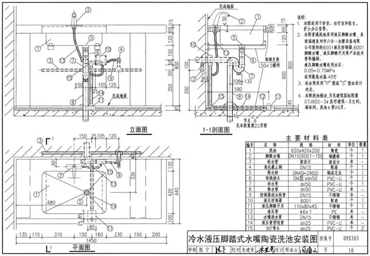
国标09s304第17页的内容

09s302,09s303 09s304卫生设备安装等图集

09s304 卫生设备安装图集-01

可参考现行09s304《卫生设备安装》图集

可参考现行09s304《卫生设备安装》图集

随机推荐

华晨宇 花花 壁纸

赵冀龙无极太极,全球首家功夫养生在线教学平台

一堆炸鸡png素材透明免抠图片-其他元素-三元素3png.com

陈红绝世佳人七个古装角色你觉得哪一个最美

又是包包脑上头的一天,救命06#prem #文总包包 #他泰 - 抖音

"小天使"卡通设计

时尚街拍:过膝靴这样搭,尽显性感优雅气质,小姐姐气场十足!

失恋的感觉.