璟道新品胸大的胖女人适合穿的衣服加肥大码女人胖mm妹妹胖女装宽松遮

相关图片

仙充充加肥加大女装宽松大码220斤夏季女装遮肚子上衣女胖妹妹mm200斤

2014新款加大码女装高腰棉弹牛仔裤小脚裤胖妹妹春夏装胖mm服装图片_5

惟友大码打底衫女胖mm胖妹妹春装大码女装纯色显瘦内搭衫 黑色圆领 p1

200斤胖妹妹超美写真

胖人胖妹30-40岁妇女遮肚子200斤加肥加大码女装连衣裙胖妹妹夏装200

随机推荐

粗跟中长靴高跟磨砂皮长筒冬季新款侧拉链高筒靴女靴子女鞋春秋季

动漫人物形象

抖音最火手机壁纸108张赶紧换上

博君一肖 抖音搬运 手绘 漫画 肖战王一博 b… - 堆糖,美图壁纸兴趣

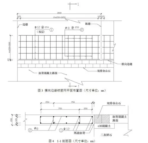
水泥混凝土路面横向边缘钢筋改进建议

威亚后无缝连接媒体探班的独家专访和持续到晚上的戏

李兰迪穿着学生装看着还真不违和,娃娃脸就是显青春啊

张含韵早期经历还是挺心酸的网友那个时候的她最可爱最清纯