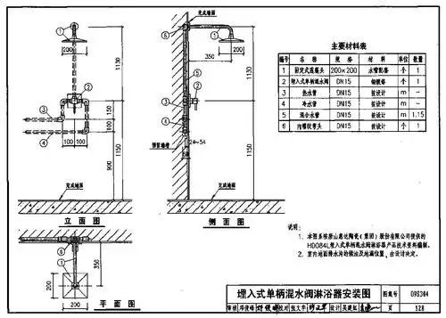
洗涤盆标准图集号09s304,p30页

相关图片

09s304 卫生设备安装图集-01

09s304 卫生设备安装图集-01

09s304 卫生设备安装图集-01

09s304 卫生设备安装图集-01

09s304图集第128页

随机推荐

简笔画幼儿园 简笔画车子大全 简笔画工程车的画法 工程车小班 - 抖音

12张小朋友爱读书儿童简笔画!世界读书日

张真源庆祝毕业晒腹肌,人鱼线锦上添花,才18岁身材好到服气_高考_衣服

精致的动漫人物线稿图高清,初学者最爱的动漫人物临摹素材

猫咪情侣头像可爱系情头

长裙秋冬一步裙直筒高腰开叉裙子女黑色春秋款不加绒3xl建议139149斤

老公给出的理由居然是这个,这样的做法能行吗?_设计

女生头像侧脸唯美漂亮高冷气质女神头像侧脸图片