施工现场电气工程防雷接地安装细部做法

相关图片

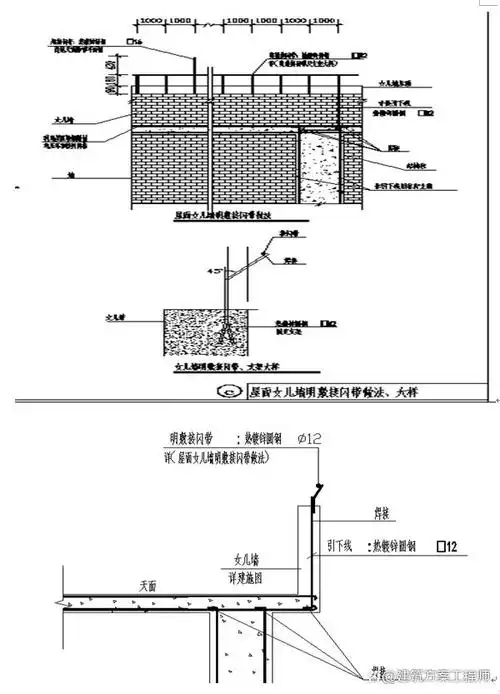
防雷接地节点详图

防雷接地工程施工应符合以下施工流程:施工准备>接地体>避雷引下线,均

ibe图文详解防雷接地系统

某市防雷接地做法结构布置cad规划详图

防雷接地做法大样图.png

随机推荐

谁的青春没有exo和tfboys呢?后来银海难见,三人难齐!

华晨宇3

女宝宝蘑菇头发型图片 小宝贝蘑菇头扎头发

【倚天屠龙记03版】丁敏君发难,宋青书送人头,周芷若痛舍掌门铁指环

南斯拉夫末代国王彼得二世他是唯一一位在美国安葬的欧洲国王

中山泉眼温泉门票价格及优惠政策附购票入口

52岁江珊嫁给小15岁男人,比前任靳东还帅,幸福生活让人羡慕啊

孟鹤堂 周九良 图源自微博