[广东]高层办公楼旋挖钻孔灌注桩基础及承台施工图

相关图片

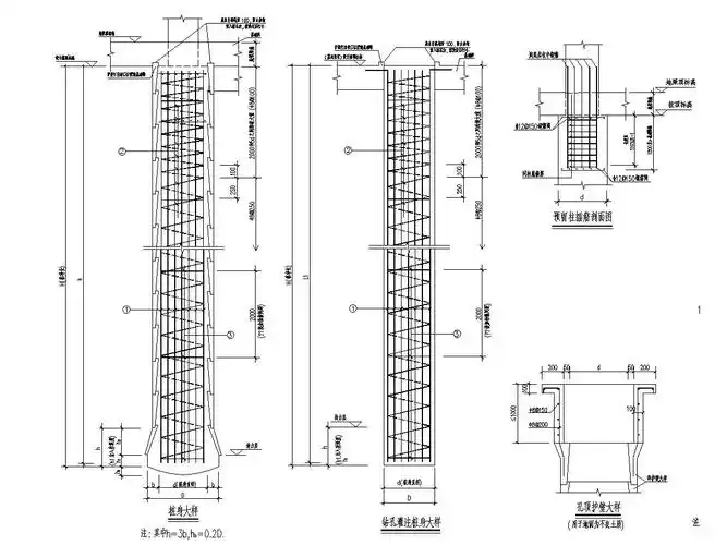
方桩配筋示意图

桩基础

亲们,帮我查一下桩基钢筋笼的组成及各部分的特点

抗滑桩结构图.ppt

某地下室桩基节点构造详图 图纸包括: 桩设计说明,基础详图共3

随机推荐

校长)刘巍(明星御用化妆师)赵苗苗(化妆讲师)樊亚梅(美甲讲师)蒋雪

素描头像王俊凯

洪欣"守财奴"?人家可是隐形富豪呢!

日系定位烫纹理烫 帅气阳光帅哥发型_男生烫发 - 美发站

吴亦凡寸头照,无处不精致,真的是一个痞帅痞帅的少年

吉克隽逸身穿彝族阿都服饰端庄秀丽凸显民族特色

低饱和度小众芋紫跳色 这款指甲油跳色组合不挑肤色,低饱和度的芋

哈乐盐酸坦索罗辛缓释胶囊02mg10粒盒1盒