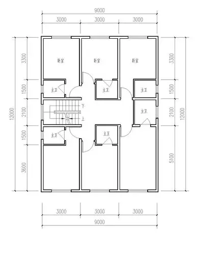
8x9米实用农村小别墅户型_新款农村自建二层房子图纸 - 轩鼎房屋图纸

相关图片

小别墅图纸_2020年新款别墅图 - 二层 - 湖南归园居建筑设计有限公司

最新两层经典别墅设计平面图欣赏

新农村二层实用小别墅施工图纸及效果图_两层自建房屋设计,鼎川建筑

农村二层房屋设计图,以后家家户户都是这样的小洋楼,造价不高人 - 抖

11x8米20万农村小别墅二层小别墅设计图农村房屋设计图

随机推荐

儿童画|简单的线条和形状的概括,这60例简笔画素材值得收藏

黄景瑜时尚帅气,看了他小时候的照片,才知道什么叫做从小帅到大

男人就应该去努力拼搏奋斗,39张励志精品头像,选一个换上吧

电动车以换代充,在普通居民群体遇冷,充电柜受到欢迎

[游戏本体] lol的qq表情,不定期更新 nga玩家社区

韩国女团朴彩英,长得不是最好看的,但绝对是最媚的!

首页 桌面壁纸 风景壁纸 清新的房屋建筑摄影图片高清宽屏壁纸

【手绘/绘画过程】手绘归来的奥特曼,致永远的乡秀树!