沥青混凝土硬化地面剖面图

相关图片

结构剖面图

大体积混凝土施工工艺 所示:图1 大体积混凝土测温点设置剖面示意图 2

图纸 包括: 锅炉房流程图 学生澡堂及锅炉房剖面图(一)(二)

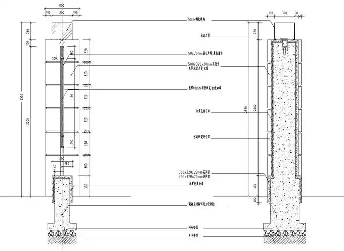
特色景观墙节点详图(混凝土结构)

2019最新整理53个现浇混凝土墙建筑节点详图

随机推荐

鬼灭之刃:日之呼吸为什么没有普及?百花齐放的呼吸法是好是坏?

《黎明前的抉择》热播 宋梓侨演绎热血女军官

男生发型分享~ #根据脸型设计发型 #男生发型重要性 #男 - 抖音

p>吴彦祖(daniel wu),1974年9月30日出生于美国旧金山,华语影视男

舞台妆

花园,园艺,春

定做企业信封 邮寄信封印刷 优质白牛皮纸彩色5号7号9号信封上海

现世报?曾经宁愿坐在宝马车里哭的她,如今却发文遭受"家暴"