自动门电机,感应门机器,ltc自动感应门

相关图片

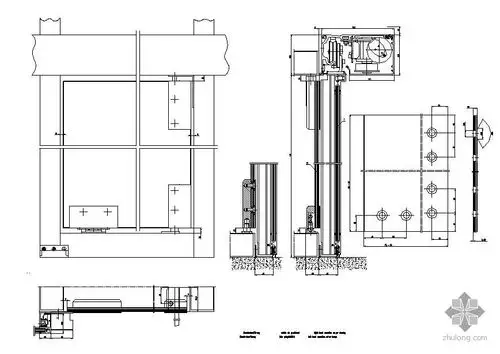
某大门感应门节点详图

ownic欧尼克感应门

杭州【厂家直供】重型感应门自动门机,电动感应门机,感应门机组

感应门节点详图_cad图纸下载-土木在线

湖南高档自动感应门定做

随机推荐

侧脸审美研究笔记好看的侧面是黄种人颌面白种人五官

张艺兴 卡通手绘 cr:logo

《new boy》简谱 有想要的谱子可以评论区告诉我呀

动漫头像男生帅气阳光超清图片,这样的男头该哪里找

猫咪互相舔毛是在秀恩爱恰恰相反

本人男18岁 腿很粗 而且小腿是肌肉腿 希望那位大神能指点我,给我一些

一件t恤的40种穿法,让你美爆整个春夏!

好冷,咪咪都冻僵了