紫禁城最怪的坤宁宫365日萨满祭祀和2天洞房花烛

相关图片

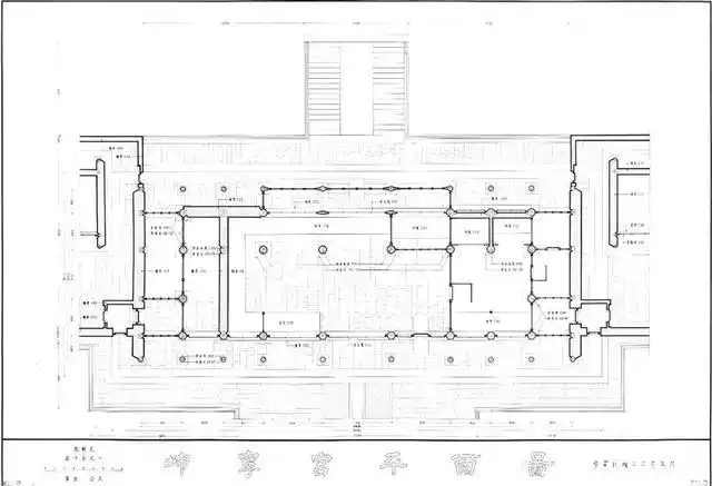
坤宁宫坤宁宫,明代一直是皇后的寝宫.

坤宁宫是什么地方电视剧中皇后居住的地方其实不然

阅读材料回答问题

神武门.11. 御花园-->10. 坤宁宫-->9. 交泰殿-->8. 乾清宫-->7.

太后:宁圣宫皇帝:御乾宫【养心殿,御雄殿】皇后:坤宁宫【正殿,永寿殿

随机推荐

《修炼爱情》背后真实的故事,成为了 #林俊杰一生的痛 #娱评大赏

收集的178种狗狗名字大全(采用美国akc标准)让你轻松学习认出狗狗是

奥运冠军刘璇挺9个月孕肚大秀倒立一字马四肢纤细活力十足

张哲瀚和张云龙好像 两人相似度极高遭网友调侃是双胞胎(2)

李宁新款运动板鞋魔术贴小白鞋

名侦探柯南300张江户川柯南头像合集萌翻了

原创主持人林海两任妻子都是同行如今51岁生活十分幸福

小马宝莉:宇宙公主召唤紫悦,魔法全部消失,国家靠你了-动漫视频-搜狐