壁纸| imessage 聊天对话样式的有趣壁纸

相关图片

有没有关于闭上嘴言多必失之类的手机壁纸

有没有关于闭上嘴言多必失之类的手机壁纸

有没有关于闭上嘴言多必失之类的手机壁纸

iphone 锁屏 - 堆糖,美图壁纸兴趣社区

文字壁纸 锁屏 聊天背景

随机推荐

华晨宇 hcy 花花

蔡依林官方身高156cm,可每一次她看上去都有1米6以上的气势,其实她报

胡先煦在机场穿的这一身蛮好看的发现没套路很简单

求下图的矢量图~~~谢谢!南无阿弥陀佛

李斯丹妮

history4 #history4近距离爱上你呈仁cp #萧立呈藤沐仁

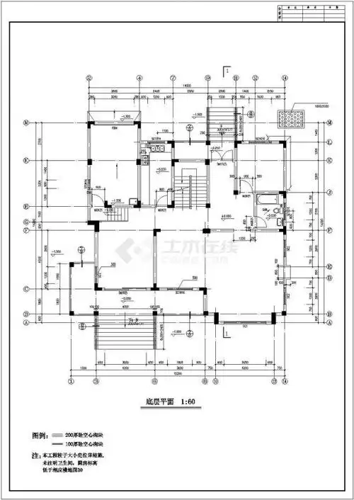
某两层私家小别墅建施图附效果图

明天会更好完整版简谱